OK. Monday, 23 February, is the start of this major project! Below are some drawings of the project.
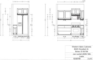
Elevation view of the major appliances: Stove, Microwave, Exhaust Hood (West Wall) and Refrigerator (South Wall)
.
The Sink (North Wall) and the placement of the Dishwasher. Note the cabinets and drawer space.
These last two views are overhead views and placement views.
What you don’t see is the Sky Light, LED lighting under the cabinets, the Ceiling Lights , the new flooring and the Pot Rack.
It is said that it will be completed in one week. I hope so, but one must always be ready for the unexpected in a house that was built 104 years ago – it’s one of the “perks” of owning an old house. We are trying very hard to keep the design and appearance in the ambiance of the early 1900’s. Joe Levitch, our contractor, is working very hard to keep this in mind and to keep us in line. He is succeeding! Wish us luck! I had promised some Fasnachts for Shrove Tuesday, but I really don’t think that will happen this year.

Hi Bob and Robin,I am so excited you are getting a “new” kitchen! If anyone ever deserved, or needed, a wonderful kitchen, it is you. What did you decide on for your counter tops? We were discussing pros and cons of various options at the Board meeting, so am curious about your decision—if one has been made! What kind of appliances did you get? They’ve got some terrific things out there now. Good luck with your project—it isn’t always easy to live through remodeling—but is sure worth it when it is done.
LikeLike